
Ristrutturazione Residenziale a Pieve di Soligo
Ristrutturazione Residenziale a Pieve di Soligo
Progetto di ristrutturazione edilizia finalizzato al ricavo di quattro unità residenziali.
Pieve di Soligo, Italia
2008
Panoramica del Progetto
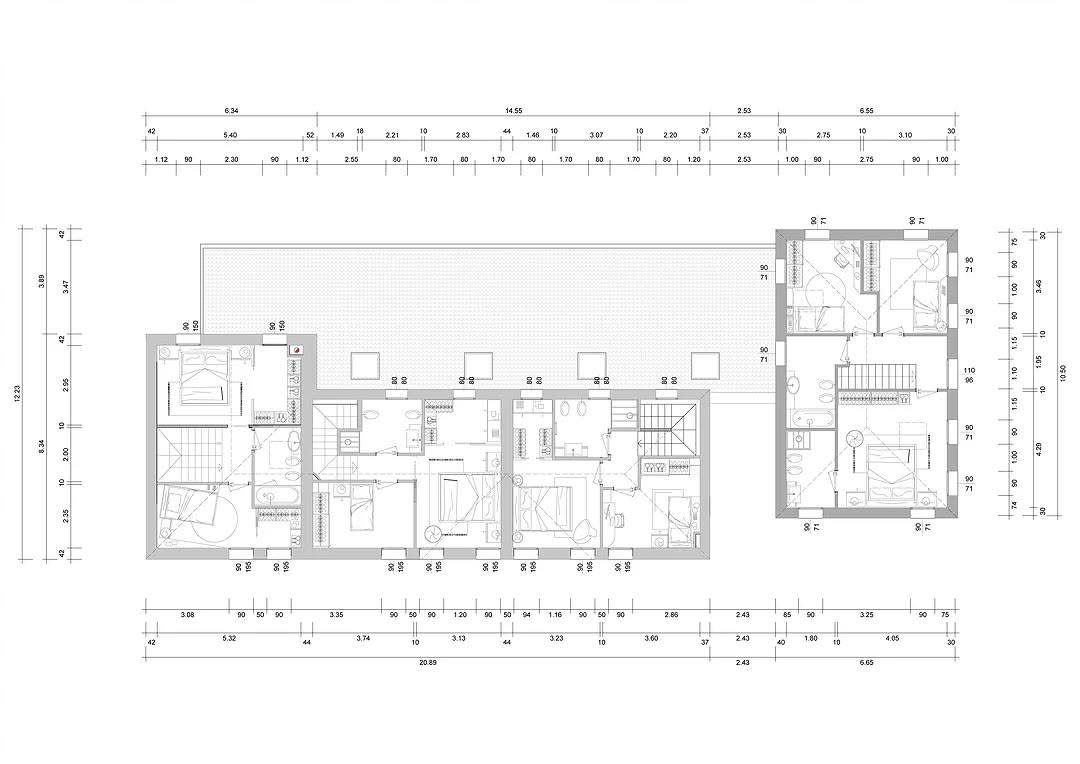
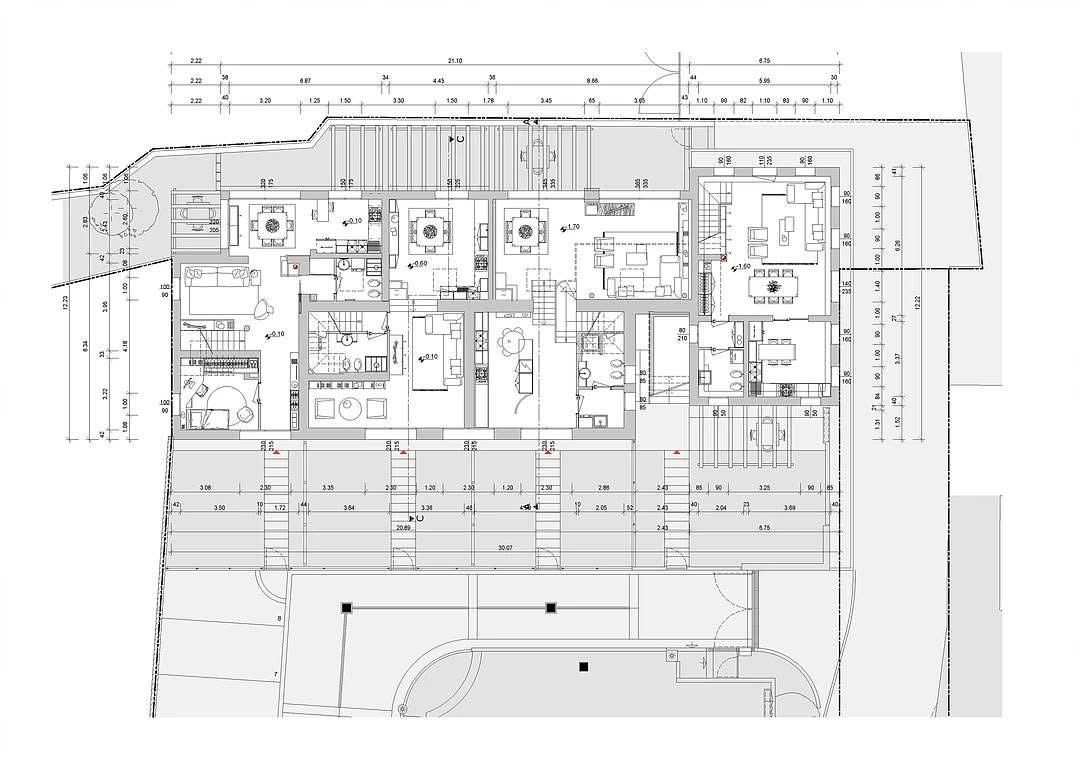
Il progetto riguarda un intervento di ristrutturazione edilizia nel Comune di Pieve di Soligo (TV), finalizzato al ricavo di quattro unità residenziali a partire da un fabbricato esistente. L'operazione ha previsto la riqualificazione complessiva dell'edificio, con una riorganizzazione funzionale degli spazi interni e un adeguamento delle caratteristiche distributive e costruttive alle nuove esigenze abitative.
La progettazione ha posto particolare attenzione alla valorizzazione dell'edificio esistente, al miglioramento della qualità degli spazi interni e al rapporto tra ambienti abitativi e spazi esterni. L'intervento si inserisce nel contesto urbano e paesaggistico locale, mantenendo coerenza formale e tipologica con l'intorno edificato.
Galleria Immagini
Hai un progetto in mente?
Siamo pronti ad ascoltare le tue idee e trasformarle in realtà. Contattaci per una consulenza gratuita.
Contattaci